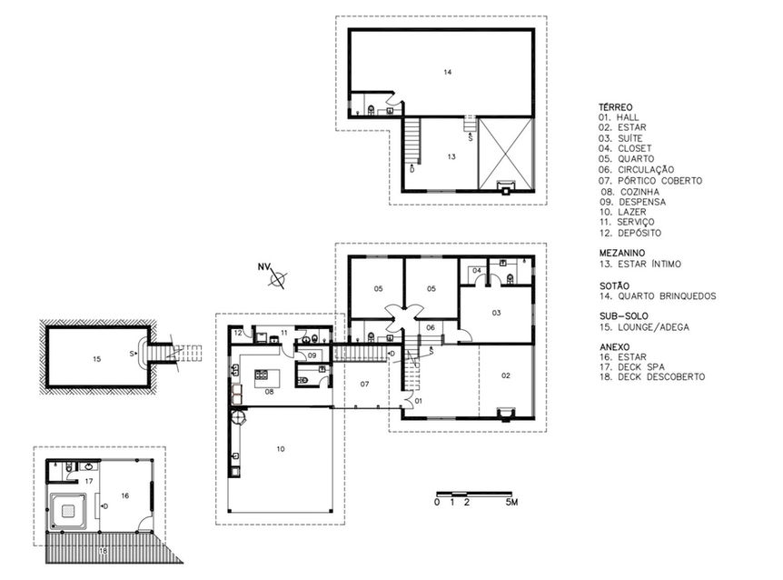
RESIDÊNCIA JG – CONDOMÍNIO EM RIO ACIMA 2003
Devido às restrições do terreno, como limite para movimentação de terra e desmatamento, o partido foi definido em função da topografia e do mínimo de corte de árvores.
A casa é a residência de fim de semana de um casal, com duas filhas (a segunda gestação aconteceu após o início das obras) apenas para os finais de semana, pois moram em uma grande cobertura em bairro nobre de Belo Horizonte.
O refúgio para descansar e receber amigos fica no meio da mata (só foi desmatado o suficiente para a locação da edificação e da rampa de acesso) dentro do Condomínio Canto das Águas em Rio Acima/MG, em um terreno com cerca de 3.700,00m². É a concretização do sonho do marido de uma "log home" e da esposa que adora decoração e móveis de demolição. Com isso o projeto foi todo executado em estrutura de madeira (Lyptus), com fechamentos em alvenaria convencional, alvenaria de pedra e bastante vidro, de maneira a trazer a natureza para dentro de casa.
Por ser uma residência de final de semana, na verdade a casa é o lazer. Não existe piscina, a cozinha é ao mesmo tempo lugar de encontro e estar, fica junto ao jardim e ao gazebo com hidro-spa. O fogão fica no centro, na ilha quadrada com um apoio para pequenas refeições. Junto à mesa grande existe uma bancada com churrasqueira e forno de pão/pizza. Sob o jardim de manobra dos carros, o proprietário construiu uma grande oficina para seu hobby de modelismo.









